Clínica Vascular C
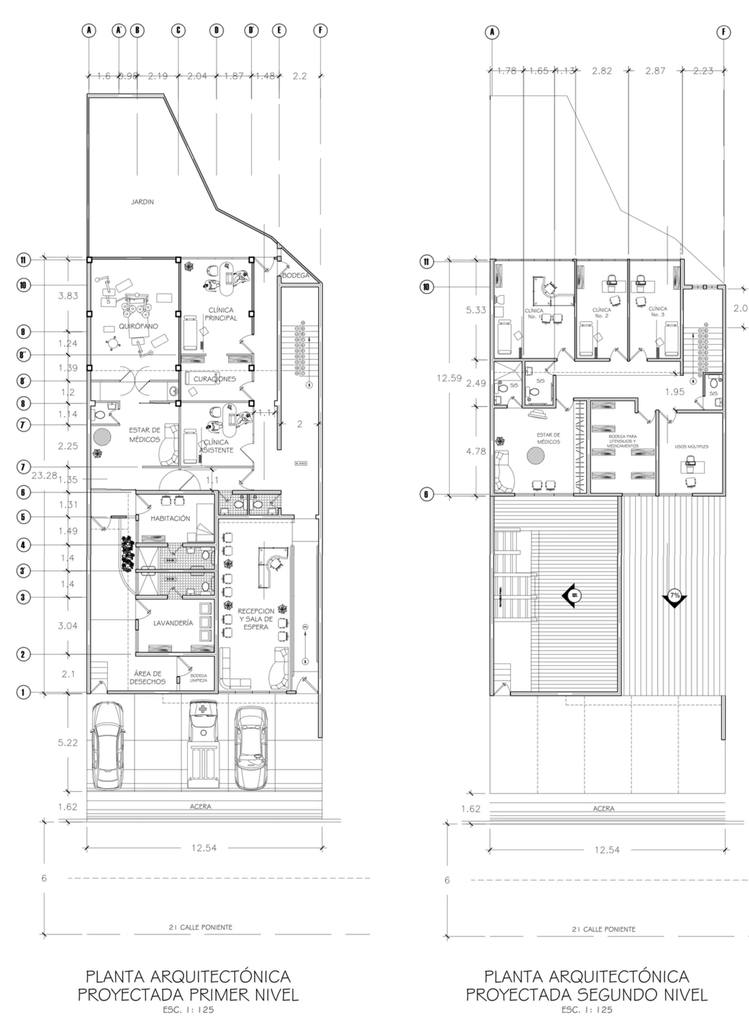
En el corazón de Colonia Médica en San Salvador, una casa construida en los años setentas ha experimentado una metamorfosis arquitectónica que la ha convertido en una moderna clínica médica con quirófano.
La intervención comenzó con la evaluación exhaustiva de la estructura existente, que mantenía el típico diseño residencial de la época: volúmenes simples, techos planos y una disposición funcional en planta abierta. La estrategia del diseño se enfocó en adaptar estos elementos a los requisitos específicos de una clínica, sin sacrificar el carácter acogedor del edificio.

Estado original de la casa de habitación

Casa de habitación intervenida

Fachada